
ราชกิจจานุเบกษาแพร่ประกาศกรมศิลปากร ขึ้นทะเบียนที่ดินโบราณสถาน วัดโสมนัสวิหารราชวรวิหาร
สำนักข่าวอิศรา (www.isranews.org) รายงานว่า เมื่อวันที่ 7 พฤศจิกายน 2567 เว็บไซต์ราชกิจจานุเบกษา เผยแพร่ประกาศกรมศิลปากร เรื่อง ขึ้นทะเบียนและกำหนดเขตที่ดินโบราณสถาน ว่า
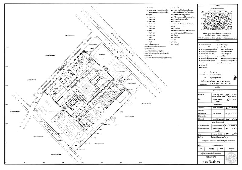
อาศัยอำนาจตามความในมาตรา 7 แห่ง พ.ร.บ.โบราณสถาน โบราณวัตถุ ศิลปวัตถุ และ พิพิธภัณฑสถานแห่งชาติ พ.ศ.2504 กรมศิลปากรจึงประกาศขึ้นทะเบียนและกำหนดเขตที่ดิน โบราณสถานวัดโสมนัสวิหารราชวรวิหาร ถนนกรุงเกษม แขวงวัดโสมนัส เขตป้อมปราบศัตรูพ่าย กรุงเทพมหานคร
ให้มีพื้นที่โบราณสถานประมาณ 25 ไร่ 2.5 ตารางวา รายละเอียดดังปรากฏ ตามแผนผังแนบท้ายประกาศ
อ่านประกาศ: https://ratchakitcha.soc.go.th/documents/47270.pdf


นอกจากนี้
ราชกิจจานุเบกษา เผยแพร่ประกาศกรมศิลปากร เรื่อง ขึ้นทะเบียนและกำหนดเขตที่ดินโบราณสถาน ว่า
อาศัยอำนาจตามความในมาตรา 7 แห่ง พ.ร.บ.โบราณสถาน โบราณวัตถุ ศิลปวัตถุ และ พิพิธภัณฑสถานแห่งชาติ พ.ศ.2504 กรมศิลปากรจึงประกาศขึ้นทะเบียนและกำหนดเขตที่ดิน โบราณสถานปรางค์นางผมหอม ตำบลหนองรี อำเภอลำสนธิ จังหวัดลพบุรี
ให้มีพื้นที่โบราณสถานประมาณ 7 ไร่ 2 งาน 36.05 ตารางวา รายละเอียดดังปรากฏ ตามแผนผังแนบท้ายประกาศ
อ่านประกาศ: https://ratchakitcha.soc.go.th/documents/48504.pdf



Isranews Agency | สำนักข่าวอิศรา