
‘ทอท.’ ยันโครงสร้าง ‘อาคาร Service Hall’ แข็งแรง หลังพบรอยร้าวบนผนังอาคารเพิ่ม ยันตัวอาคารแข็งแรง แม้สร้างบน ‘เสาเข็ม-ตอม่อ’ เดิมของลานจอดรถ เผยเตรียมทุบผนัง ‘ที่พัง-มีรอยร้าว’ ทั้งหมด แล้วสร้างใหม่
....................................
สืบเนื่องจากกรณีที่เมื่อวันที่ 18 เม.ย.2565 เกิดพายุฝนบริเวณท่าอากาศยานดอนเมือง จนเป็นเหตุให้กำแพงและรางระบายน้ำของอาคาร Service Hall ซึ่งตั้งอยู่บริเวณด้านทิศเหนือของอาคารผู้โดยสารระหว่างประเทศ (อาคาร 1) สนามบินดอนเมือง ถล่มลงมา
กระทั่งต่อมาวันที่ 19 เม.ย.ที่ผ่านมา กระทรวงคมนาคมได้แต่งตั้งคณะกรรมการพิจารณาตรวจสอบข้อเท็จจริง กรณีกำแพงอาคาร Service Hall ท่าอากาศยานดอนเมืองพังถล่ม เมื่อวันที่ 18 เม.ย.2565 โดยมีนายพิศักดิ์ จิตวิริยะวศิน รองปลัดกระทรวงคมนาคม เป็นประธาน ขณะที่ ทอท. ได้แต่งตั้งคณะกรรมการตรวจสอบข้อเท็จจริงฯในเรื่องนี้เช่นกัน นั้น (อ่านประกอบ : ตั้ง'รองปลัดคมนาคม'นั่งปธ.สอบ เหตุอาคาร'สนามบินดอนเมือง'ถล่ม-ทอท.ยันไม่กระทบโครงสร้าง)
เมื่อวันที่ 20 เม.ย. สำนักข่าวอิศรา (www.isranews.org) ได้รับข้อมูลว่า นอกจากกำแพงและรางระบายน้ำของอาคาร Service Hall จะถล่มลงมา เพราะพายุฝนแล้ว ในวันที่เกิดเหตุ (วันที่ 18 เม.ย.) ได้มีการถ่ายภาพบริเวณจุดที่ผนังอาคารพังถล่ม และพบว่าผนังอาคารบริเวณใกล้กับเสาโครงสร้างหลักของอาคารมีรอยร้าวเกิดขึ้น อย่างไรก็ตาม ไม่มีการยืนยันว่า รอยร้าวดังกล่าวเกิดขึ้นก่อนหรือหลังเหตุการณ์กำแพงและรางระบายน้ำของอาคาร Service Hall พังถล่มลงมา

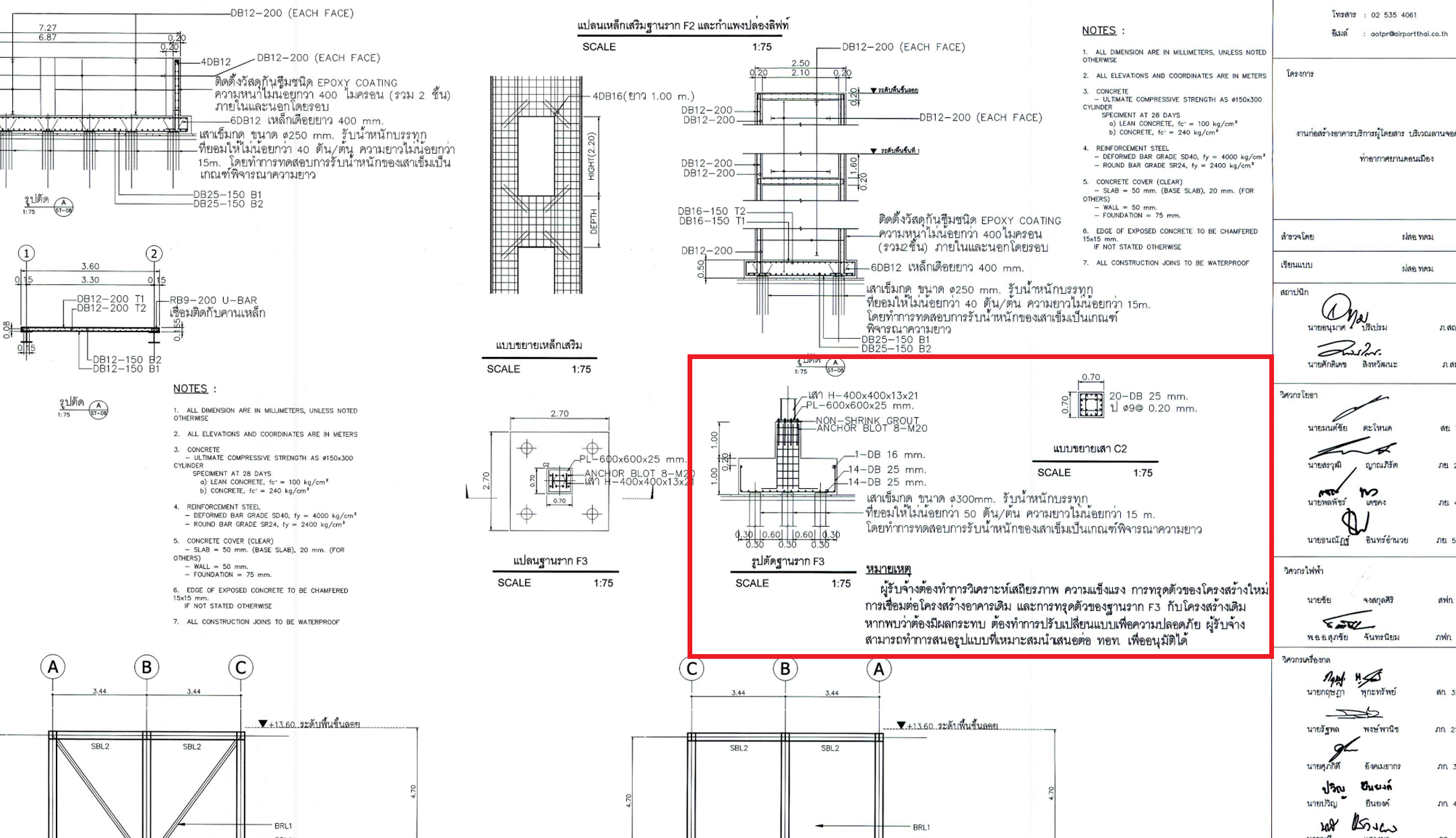
แหล่งข่าวจากวงการผู้รับเหมาใน ทอท. รายหนึ่ง กล่าวกับสำนักข่าวอิศราว่า การก่อสร้างอาคาร Service Hall นั้น เป็นการก่อสร้างอาคารบนฐานรากเดิมของลานจอดรถ โดยไม่มีการตอกเสาเข็มใหม่ แต่เป็นการใช้เสาเข็มของฐานรากเดิม (ลานจอดรถ) จึงทำให้มีการตั้งข้อสังเกตว่า การใช้เสาเข็มของฐานรากเดิมเป็นจุดเชื่อมต่อในการวางเสาโครงสร้างเหล็กของอาคารใหม่นั้น อาจจะส่งผลกระทบต่อความมั่นคงแข็งแรงของตัวอาคารหรือไม่
อย่างไรก็ตาม จากแบบแปลนการก่อสร้างอาคาร Service Hall ทอท.ได้ให้ผู้รับจ้างทำการวิเคราะห์เสถียรภาพ ความแข็งแรง การทรุดตัวของโครงสร้างใหม่ การเชื่อมต่อกับโครงสร้างอาคารเดิม และการทรุดตัวของฐานราก F3 กับโครงสร้างเดิม หากพบว่ามีการผลกระทบ ต้องทำการปรับเปลี่ยนแบบเพื่อความปลอดภัย โดยให้ผู้รับจ้างสามารถทำการเสนอรูปแบบที่เหมาะสมต่อ ทอท. เพื่ออนุมัติต่อไป
(ที่มา : แบบแปลนงานจ้างก่อสร้างอาคารบริการผู้โดยสาร บริเวณลานจอด ATTA ท่าอากาศยานดอนเมือง หรือ อาคาร Service Hall)
(ภาพการประกอบเสาโครงสร้างเหล็กของ อาคาร Service Hall บนฐานเสาเข็มและตอม่อเดิม)
ด้าน นาวาอากาศโท รณกร เฉลิมแสนยากร รองผู้อำนวยการท่าอากาศยานดอนเมือง รักษาการแทนผู้อำนวยการท่าอากาศยานดอนเมือง ทอท. ให้สัมภาษณ์สำนักข่าวอิศรา กรณีที่มีการตั้งข้อสังเกตเกี่ยวกับความแข็งแรงของโครงสร้างอาคาร Service Hall ซึ่งเป็นการวางโครงสร้างเสาเหล็กของอาคารต่อจากเสาเข็มและตอม่อเดิม ว่า แม้ว่าเสาโครงสร้างอาคารบางส่วนจะสร้างบนตอม่อและเสาเข็มเดิม แต่ไม่ได้กระทบต่อความแข็งแรงของโครงสร้างอาคารแต่อย่างใด
นาวาอากาศโท รณกร อธิบายว่า เสาเข็มและตอม่อของอาคาร Service Hall มีทั้งที่เป็นเสาเข็มที่ตอกใหม่ และเสาเข็มเดิม ซึ่งแบ่งเป็น 3 กลุ่ม ได้แก่ 1.กลุ่มเสาเข็มและตอม่อที่รับน้ำหนักในส่วนพื้นอาคาร 2.กลุ่มเสาเข็มและตอม่อในส่วนที่เชื่อมกับอาคารเก่า และ3.กลุ่มเสาเข็มและตอม่อที่เป็นฐานของลิฟต์ โดยกลุ่มเสาเข็มและตอม่อทั้ง 3 กลุ่ม สามารถรับน้ำหนักได้ไม่ต่ำกว่า 400 ตัน/ต้น จึงทำให้โครงสร้างอาคารมีความแข็งแรงตามที่ได้มีการออกแบบไว้
นาวาอากาศโท รณกร ยังระบุว่า จากเหตุการณ์ที่เกิดขึ้น จริงๆแล้วตัวอาคาร Service Hall ไม่ได้ถล่ม มีเพียงผนังอาคารบางส่วนพังเท่านั้น และจากการเชิญวิศวกรและผู้เชี่ยวชาญมาตรวจสอบเบื้องต้น พบว่า สาเหตุที่ทำให้อาคารพังลงมา เป็นเพราะปริมาณน้ำฝนที่ตกลงมามาก ทำให้รางรับน้ำฝนต้องรับน้ำหนักมาก ประกอบกับมีลมพายุพัดเข้ามา ส่งผลให้คาน ซึ่งเป็นฐานรองรับรางน้ำฝนหล่นหรือยุบตัวมาลงดันผนังอาคาร จนทำให้ผนังอาคารพังลงมาบางส่วน
“ผนังทั้งหมด คร่าวมีอยู่ 8 ช่องๆละ 10 เมตร แต่เสียหายไป 3-4 ช่อง หรือเกือบครึ่งหนึ่ง และส่วนผนังที่ไม่ได้เสียหาย ก็มีรอยร้าว รอยแตกอยู่บ้าง ซึ่งหลังจากนี้ เราจะทุบผนังทั้งหมด แล้วก่อสร้างใหม่” นาวาอากาศโท รณกร ระบุ
(ภาพถ่ายบริเวณอาคาร Service Hall จุดที่ผนังพังถล่มลงมา เมื่อวันที่ 18 เม.ย.2565)
นาวาอากาศโท รณกร กล่าวว่า การที่ ทอท.จะมีการเชิญวิศวกรและผู้เชี่ยวชาญมาตรวจสอบกรณีผนังอาคาร Service Hall พังลงมานั้น เป็นเพียงการตรวจสอบเบื้องต้นแล้ว ซึ่งการตรวจสอบข้อเท็จจริงทั้งหมด จะเป็นหน้าที่ของคณะกรรมการพิจารณาตรวจสอบข้อเท็จจริง กรณีกำแพงอาคาร Service Hall ท่าอากาศยานดอนเมืองพังถล่ม เมื่อวันที่ 18 เมษายน 2565 ที่มีนายพิศักดิ์ จิตวิริยะวศิน รองปลัดกระทรวงคมนาคม เป็นประธาน
"คณะกรรมการพิจารณาตรวจสอบข้อเท็จจริงฯที่มีท่านนายพิศักดิ์ เป็นประธานฯ จะเข้าไปตรวจสอบใน 2 ประเด็นหลัก ได้แก่ 1.การตรวจสอบเกี่ยวกับส่วนงานวิศวกรรม ซึ่งจะมีการผู้เชี่ยวชาญมาวิเคราะห์ถึงสาเหตุที่ผนังอาคารพังลงมา การพิจารณาแบบแปลน และการก่อสร้างว่าถูกต้องหรือไม่ และ2.การตรวจสอบเกี่ยวกับสัญญาว่า มีการดำเนินการถูกต้องหรือไม่" นาวาอากาศโท รณกร กล่าว
อ่านประกอบ :
ตั้ง'รองปลัดคมนาคม'นั่งปธ.สอบ เหตุอาคาร'สนามบินดอนเมือง'ถล่ม-ทอท.ยันไม่กระทบโครงสร้าง
เบื้องลึก! ทอท.สร้างอาคารกรุ๊ปทัวร์ดอนเมืองพายุถล่ม ผู้ชนะไม่ทำสัญญา-ให้อันดับ2เสียบแทน

Isranews Agency | สำนักข่าวอิศรา